苗栗縣透天
首頁
│
苗栗房屋
│
苗栗房子
│
申請房仲網站
苗栗房屋出售
苗栗房屋出租
苗栗土地出售
苗栗土地出租
苗栗法拍屋
苗栗法拍地
苗栗房仲
苗栗房地產委託
關鍵字
現在位置:
首頁
>
苗栗房屋出售
>
竹南房屋出售
>
苗栗縣透天-苗栗縣竹南鎮建國路
最後更新:2天前
檢舉不實
│
列印
│
物件留言
|
觀看地圖
苗栗縣透天
苗栗縣透天
房屋資料
案名
照南雙學區大地坪美透天
案號
B0022321
地址
苗栗縣竹南鎮建國路
苗栗縣竹南鎮建國路
最新交易狀態
帶看中
售價
售
1088萬
房屋類型
透天_別墅
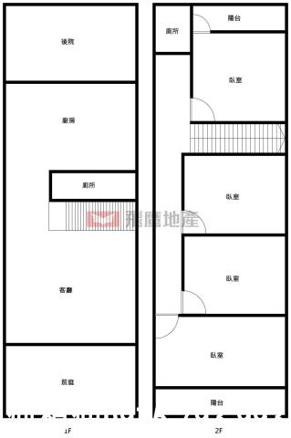
總登記坪數
45.55 坪
格局
4房
,2廳,2衛
屋齡
44年
每坪單價
23.89萬/坪
公設比
車位
座向
朝東南
無障礙環境
沒有
法拍屋
本物件不是法拍屋
建物所在樓層
所在樓層:1~2樓
管理費
管委會
沒有
中庭
沒有
電梯
沒有
是否為凶宅
不是
300公尺內嫌惡設施
面前道路
面寬
縱深
邊間
不是
房屋銷售來源
不動產經紀人/專業仲介
房屋特色
照南雙學區,精華地點
稀有釋出,屋況佳,大地坪
.........................................................................................
賞屋專線何桓仲:0975-793-993
歡迎加入我的LINE:0975793993
何桓仲房屋網站:http://www.happiness188.com/
歡迎預約賞屋~歡迎委託賣屋~
坪數說明
建物登記總坪數
約 45.55 坪
土地登記總坪數
約 32.29 坪
主建物坪數
45.55坪
停車位坪數
附屬建物坪數
公共設施坪數
增建坪數
周邊環境
生活機能
鄰近交通
鄰近地標
公園綠地
鄰近學區
捷運站
房屋聯絡人資訊
聯絡人姓名
何桓仲
(煩請告知聯絡人,您是在889房屋網看到這則廣告,真摯感恩您的幫忙)
手機
0975-793-993(何桓仲)
電子信箱
hehuanchung@gmail.com
Skype通話
Line加入好友
所屬公司名稱
飛鷹地產-頭份建國國中加盟店-請指名-何桓仲
公司電話
何桓仲 0975-793-993
公司傳真
歡迎加Line ID: 0975793993
公司地址
苗栗縣頭份市建國路112-1號
網 址
http://www.happiness188.com
贊助商廣告
苗栗縣透天
苗栗竹南透天-1
苗栗竹南透天-2
苗栗竹南透天-3
苗栗竹南透天-4
苗栗竹南透天-5
苗栗竹南透天-6
苗栗竹南透天-7
苗栗竹南透天-8
苗栗竹南透天-9
苗栗竹南透天-10
苗栗竹南透天-11
苗栗竹南透天-12
苗栗竹南透天-13
苗栗竹南透天-14
觀看地圖
到Google查看地圖
到Google查看街景
相似物件
大湖?
透天_別墅/8房
80.92 坪
售1200萬
竹南忠勇街
透天_別墅/4房
53.45 坪
售1220萬
竹南龍安街
透天_別墅/0房
33 坪
售1180萬
竹南龍泉街
透天_別墅/4房
53.03 坪
售1280萬
頭份忠孝一路
透天_別墅/6房
50.32 坪
售998萬
物件留言
請注意,如果您詢問的內容與物件不相符合或是廣告,經過審核,系統將會直接刪除您的發問內容
檢舉不實
竹南華廈
│
竹南電梯大廈
│
竹南電梯大樓
│
竹南大樓
│
竹南大廈
│
竹南電梯華廈
│
竹南透天
│
竹南透天厝
│
竹南透天別墅
│
竹南透天店面
│
竹南大樓店面
│
竹南公寓
│
竹南店面
│
竹南套房
│
竹南辦公室
│
竹南預售屋
│
竹南豪宅
│
竹南樓中樓
│
竹南農舍
│
竹南國宅
│
竹南倉庫
│
竹南辦公大樓
│
竹南別墅
│
竹南電梯別墅
│
竹南廠房
│
竹南廠辦
│
竹南工業廠房
│
竹南中古屋
│
竹南新成屋
│
竹南新房屋
│
竹南新房子
│
竹南成屋
│
竹南建案
│
竹南大樓建案
│
竹南新建案
│
竹南別墅建案
│
竹南套房建案
│
竹南透天建案
│
竹南電梯透天
│
竹南房地產
│
竹南不動產
│
竹南房屋仲介
│
竹南房仲
│
●電話:07-7963288 ●電子信箱:
服務信箱
本網站保留一切權利,非經正式書面同意,禁止轉貼節錄。建議瀏覽解析度1024*768。
資料處理中,請稍後...
請注意:此案件已下架